Gru a gantry di sollevamento del raggio prefabbricato
Descrizione dei prodotti
Una gru a cavalletto di sollevamento di raggi prefabbricati è un'attrezzatura di sollevamento specializzata utilizzata nei progetti di costruzione e ingegneria civile per gestire e installare travi di cemento prefabbricato, come quelle utilizzate in ponti, viadotti e strutture per l'edilizia. Queste gru forniscono elevata capacità di sollevamento, stabilità e precisione per il trasporto e il posizionamento di elementi prefabbricati pesanti.
Caratteristiche chiave di una gru a gantry di sollevamento del raggio prefabbricato:
Elevata capacità di carico - Progettato per sollevare travi prefabbricate pesanti (che vanno da decine a centinaia di tonnellate).
Span regolabile: il cavalletto può essere personalizzato su diverse campate per soddisfare i requisiti del sito di costruzione.
Struttura robusta-realizzata in acciaio ad alta resistenza per durata e stabilità durante le operazioni di sollevamento.
Posizionamento preciso - dotato di paranchi elettrici o idraulici per un posizionamento accurato del fascio.
Opzioni di mobilità:
Gruffi fissi a cavalletto - stazionarie, usate in iarde prefabbricate.
Crans a cavalletto mobili - dotate di ruote o binari per il movimento lungo il cantiere.
Sistemi di sicurezza: include protezione da sovraccarico, meccanismi anti-onde e freni di emergenza.
Tipi di gru a cavalletto di sollevamento del raggio prefabbricato:
Cantry a gantry single-giier-capacità di sollevamento da leggera a media, economica.
Cantry a doppio giro di giunder-maggiore capacità di sollevamento, più stabile per travi pesanti.
Gru di Gantry in gomma (RTG): si sposta su pneumatici in gomma per un posizionamento flessibile.
Cantry montata su rotaia-corre sui binari per un movimento preciso in cantieri prefabbricati o costruzioni di ponti.
Componenti core: motore, cuscinetto, cambio, motore, ingranaggio
Luogo di origine: Henan, Cina
Garanzia: 2 anni
Peso (kg): 50000 kg
Video-ispezione in uscita: fornito
Rapporto di test dei macchinari: fornito
Applicazione: all'aperto
Parole chiave: Gantry Crane
Capacità di carico nominale: 50ton
Velocità di viaggio incrociato: 44,6 m/min
Velocità di viaggio lungo: 47,1m/min
Modo di controllo: cabina
Alimentazione: bobina del cavo
Traccia in acciaio: Qu80
Power: 3- fase AC 50Hz 380V

Immagini e componenti
Una gru a cavalletto di sollevamento del raggio prefabbricato è costituita da diversi componenti chiave che lavorano insieme per garantire un sollevamento, il trasporto e l'installazione sicuri ed efficienti di travi di cemento prefabbricato. Di seguito è riportato una rottura dettagliata dei suoi componenti principali:
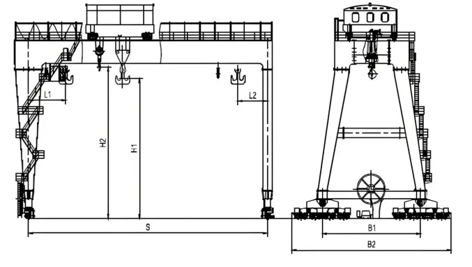
1. Struttura principale di Cavalca (Bridge Gerder & Gambe)
Bridge Gerder (raggio principale)
Il raggio orizzontale che copre l'area di lavoro, sostenendo il paranco e il carrello.
Può essere singolo-giirder (carichi più leggeri) o doppio giro (sollevamento pesante).
Gambe di supporto (colonne)
Strutture verticali che forniscono carichi di stabilità e trasferimento a terra o rotaie.
Può essere altezza fissa o regolabile per diverse condizioni di lavoro.
![]() |
![]() |
2. Meccanismo di sollevamento
Paranco elettrico o idraulico
Il dispositivo di sollevamento (paranco di corda a filo o paranco a catena) che aumenta e abbassa il raggio prefabbricato.
Raggio di sollevamento di ganci e spargitore
Il gancio si attacca ai punti di sollevamento del raggio, mentre un raggio di spargitore garantisce una distribuzione uniforme del carico per prevenire danni.
![]() ![]() |
3. Sistema di carrello e viaggi
Assemblea del carrello
Si muove orizzontalmente lungo la trave del ponte per posizionare accuratamente il raggio.
Motori e ruote da viaggio
Alimentato da motori elettrici o idraulici per un movimento regolare.

4. Fine carrozze e sistema di mobilità
Ruote o crawler
Le gru a cavalletto montate su rotaia corrono sui binari per un movimento preciso.
GRANTRI GAANTRY DEGLIAMENTO RASCE (RTG) Utilizzare le ruote pneumatiche per la flessibilità.
Guidare motori e freni
Garantire il movimento controllato e prevenire turni non intenzionali.

5. Sistema di alimentazione
Bobina via cavo o generatore diesel
Le gru a cavalletto elettrico possono utilizzare un sistema di bobina per cavi o un alimentatore per buste.
I gantrie mobili potrebbero avere un motore diesel per siti remoti.

.
6. Sistema di controllo
Cabina dell'operatore o telecomando
Può essere gestito da una cabina montata sulla gru o tramite telecomando wireless.
Inverter in frequenza (per movimento regolare)
Riduce i cretini durante il sollevamento e il viaggio.

7. Sicurezza e componenti ausiliari
Limitare gli switch: impedire il percotto del paranco e del carrello.
Protezione da sovraccarico: tagliare la potenza se il carico supera la capacità.
Sensori anti-collisione-utilizzati quando più gru funzionano nella stessa area.
Strutturali / stabilizzatori: fornire supporto extra durante le operazioni di sollevamento.
Dispositivi resistenti al vento-Importante per l'uso esterno (ad es. Costruzione del ponte).

SCHIZZO

Tecnico principale

Vantaggi
Le gru a cavalletto di sollevamento del raggio prefabbricato sono ampiamente utilizzate nella costruzione a causa della loro efficienza, sicurezza e adattabilità. Ecco i loro vantaggi chiave:
1. Alevata capacità di carico e stabilità
Progettato per sollevare pesanti raggi prefabbricati (fino a centinaia di tonnellate) con stabilità.
I design a doppio trappola offrono una forza extra per i progetti su larga scala.
2. Posizionamento e controllo precisi
Dotato di sollevamento liscio e movimento del carrello per un posizionamento accurato del raggio.
Le opzioni di controllo e automazione del telecomando riducono l'errore umano.
3. Tempo e efficienza del lavoro
Accelera la costruzione trasportando rapidamente e installando travi.
Riduce la dipendenza da grandi gru mobili, risparmiando tempo di configurazione.
4. Flessibilità in movimento
Le gru a cavalletto montate su rotaia offrono un movimento preciso lungo binari.
Le gru a cavalletto in gomma (RTG) forniscono mobilità senza binari.
5. Soluzione economica
Costi operativi inferiori rispetto alle gru crawler o alla torre.
Può essere trasferito e riutilizzato per più progetti.
6. Caratteristiche di sicurezza migliorate
Protezione da sovraccarico, sistemi anti-onde e freni di emergenza impediscono incidenti.
Riduce la gestione manuale dei rischi per i lavoratori.
7. Adattabilità alle condizioni del sito
Funziona bene in spazi confinati in cui le grandi gru non possono funzionare.
Può essere personalizzato per diverse lunghezze e pesi del raggio.
Applicazione
Queste gru sono essenziali in vari scenari di costruzione, tra cui:
1. Costruzione del ponte
Sollevare e posizionare travi di cemento prefabbricato per ponti autostradali e ferroviari.
Utilizzato nella costruzione di ponti segmentali per un allineamento preciso.
2. Fabbriche di cemento prefabbricato
Gestione e trasporto di raggi, colonne e lastre prefabbricate all'interno della pianta.
Caricamento/scarico di travi su camion per il trasporto.
3. Progetti autostradali e ferroviari
Installazione di raggi U prefabbricati, travi a T e travi di scatole per viadotti.
Utilizzato nella costruzione di cavalcavia e metropolitana.
4. COSTRUZIONE INDUSTRIALE E BEDIFICA
Erigendo travi di tetto prefabbricato, lastre da pavimento e pannelli a parete.
Utile nei magazzini, nelle fabbriche e nelle strutture di grandi dimensioni.
5. Port & Shipyard Applications
Gestione di forti strutture marine prefabbricate come moli ed elementi dock.
Gruproduzione procedura
1. Design e ingegneria
Analisi dei requisiti: determinare le specifiche, tra cui campata, altezza, ciclo di lavoro e condizioni ambientali.
Disegni CAD e calcoli del carico: gli ingegneri progettano la struttura della gru, garantendo la conformità con gli standard di sicurezza internazionali come FEM, CMAA o ISO.
Selezione dei componenti chiave: include doppie travi, carrozze finali, meccanismo del carrello, sistema di sollevamento e controlli elettrici.
2. Approvvigionamento materiale
Acciaio strutturale: piastre e travi di acciaio ad alta resistenza per travi, gambe e strutture di supporto.
Meccanismo di sollevamento: motore, cambio, fune e tamburo.
Componenti elettrici e di controllo: inverter, interruttori di limite, PLC e pannelli di controllo.
3. fabbricazione di componenti strutturali
Doppia produzione di trave
Tagliare: le piastre di acciaio vengono tagliate in forme precise.
Saldatura: le travi sono saldate usando la saldatura ad arco sommerso (SAW) per garantire la resistenza.
Macchinatura: lavorazione di precisione per un corretto allineamento di binari e carrelli.
Gambe e carrozze finali
Saldato e lavorato per movimenti a ruota liscia e rotaia.
Installazione di binari ferroviari per moto di carrello.
4. Assemblaggio di componenti meccanici e di ziiro
Sistema di carrello e paranco
Vengono assemblati il cambio, il motore, il tamburo, la guida a corda e i freni di sicurezza.
La corda del filo è avvolta sul tamburo.
Installazione del meccanismo di azionamento
I motori e i riduttori sono installati sulle carrozze finali.
Le ruote sono assemblate con un corretto allineamento per garantire un movimento regolare.
5. Installazione del sistema elettrico
Assemblaggio del pannello di controllo: include VFD, contattori e relè di sicurezza.
Cablaggio e collegamenti: cablaggio del motore, interruttori di limite e sistema di arresto di emergenza.
Installazione del telecomando e della cabina: a seconda dei requisiti del client, è installato un telecomando radio o una cabina dell'operatore.
6. Test e controllo di qualità
Test meccanici:
Test di carico con 1,25 volte la capacità nominale.
Controllo dei movimenti del carrello e prestazioni di sollevamento.
Test elettrici:
Verifica delle velocità del motore, degli interruttori di limite e delle operazioni del pannello di controllo.
Test della funzione del freno di emergenza.
Ispezioni di sicurezza:
Garantire il rispetto delle norme OSHA, ISO o di sicurezza locale.
7. Trattamento e pittura di superficie
Sandblasting: rimuove la ruggine e prepara le superfici metalliche.
Priming e pittura: primer epossidico resistente alla corrosione seguito da vernice di livello industriale.
8. Packaging e trasporto
Imballaggio dei componenti: ogni parte è piena saldamente per il trasporto.
Caricamento e spedizione: caricato su camion o container per la consegna.
9. Installazione e messa in servizio
Assemblaggio in loco: i componenti principali sono imbullonati e saldati in posizione.
Test finali: caricamento del test nel sito di installazione per garantire la piena funzionalità.
Consegna e formazione: formazione dell'operatore e approvazione finale del cliente.
10. Finali risultati
Sistema di gru a gantry completo con manuali operativi.
Supporto di garanzia e post-vendita per manutenzione a lungo termine.

Vista del seminario:
La società ha installato una piattaforma di gestione delle apparecchiature intelligenti e ha installato 310 set (set) di robot di gestione e saldatura. Dopo il completamento del piano, ci saranno più di 500 set (set) e il tasso di reti di attrezzature raggiungerà il 95%. Sono state messe in uso 32 linee di saldatura, sono previsti per l'installazione di 50 e il tasso di automazione dell'intera linea di prodotti ha raggiunto l'85%.





Etichetta sexy: gru a gantry di sollevamento del raggio prefabbricato, Cina produttori di gru a gantry a raggio prefabbricato
Un paio di
Gantry Crane per contenitoreIL prossimo Articolo
Cantry Tire in gomma utilizzataPotrebbe piacerti anche
Invia la tua richiesta



























